Onder bod:Dorpsstraat 67, 3284 AC Zuid-Beijerland - Foto
Onder bod
+52

Dorpsstraat 67 3284 AC Zuid-Beijerland € 375.000,- k.k.

  • Woonhuis
  • 3 kamers
  • 2 slaapkamers
  • 1 badkamer
  • Bouwjaar 1924
  • 125 m² perceeloppervlakte
  • 94 m² gebruiksoppervlakte
  • C Energielabel C

Beschrijving

Wonen met karakter, uitzicht én comfort – deze charmante dijkwoning aan de Dorpsstraat is er zo één die je niet vaak tegenkomt. Met een woonoppervlakte van ca. 94 m² en een perceel van 125 m² biedt deze goed onderhouden tussenwoning uit 1924 een verrassend ruime en speelse indeling. De woning beschikt over een sfeervolle woonkamer, een complete woonkeuken in het souterrain, twee (mogelijk drie) slaapkamers en praktische extra ruimtes zoals een bijkeuken en berging. Wat direct opvalt is de combinatie van authentieke charme met modern wooncomfort, én het vrije uitzicht aan de achterzijde. Een huis dat nét even anders is – en juist daarom zo aantrekkelijk.

De ligging in Zuid-Beijerland maakt het geheel compleet. Je woont hier aan de karakteristieke Dorpsstraat, met aan de achterzijde een vrije ligging richting het open landschap. Dat geeft rust, privacy en een uitzicht dat nooit verveelt. Tegelijkertijd zijn voorzieningen zoals winkels, scholen en sportfaciliteiten op korte afstand bereikbaar. De Hoeksche Waard staat bekend om zijn dorpse karakter en prettige leefomgeving, terwijl steden als Rotterdam en Dordrecht goed bereikbaar zijn. Een ideale combinatie van rust en bereikbaarheid.

Bijzonderheden:

* Bouwjaar ca. 1924
* Woonoppervlakte ca. 94 m²
* Perceeloppervlakte 125 m²
* Energielabel C
* 10 Zonnepanelen 2023
* Goed onderhouden woning
* Airconditioning aanwezig (meerdere ruimtes)
* Dakkapel aanwezig
* Tuin op het zuiden (hele dag zon)
* Vrije ligging aan de achterzijde
* Overkapping aan de woning
* Aanpandige berging
* Meterkast gemoderniseerd
* Dakisolatie en gevelisolatie
* Schilderwerk netjes bijgehouden
* Rolluiken aanwezig

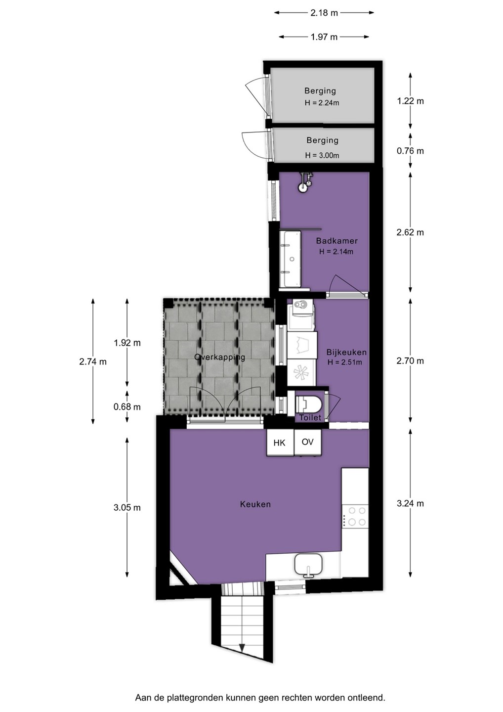
Indeling

Begane grond (dijkniveau)
Je komt binnen op dijkniveau in de hal met meterkast en toegang tot de woonkamer. De woonkamer is sfeervol afgewerkt met gestuukte wanden en plafonds en een echte houten vloer, wat direct zorgt voor een warme uitstraling. Vanuit de woonkamer heb je een prettig zicht op de straatzijde en ervaar je de karakteristieke sfeer van de woning.

Praktisch detail is de trapkast met extra veel bergruimte. Daarnaast bevindt zich bij de trapopgang naar boven nog een tweede berging, ideaal voor extra opslag. Vanuit de hal ga je naar de eerste verdieping, terwijl je vanuit de woonkamer juist naar beneden loopt richting het souterrain.

Souterrain
Hier zit echt de verrassing van de woning. De woonkeuken vormt het hart van deze verdieping en is modern ingericht met een inductiekookplaat, vaatwasser, afzuigkap, oven en een koelkast. Vanuit de eethoek loop je via openslaande deuren zo onder de overkapping in de tuin – een heerlijke plek waar binnen en buiten naadloos in elkaar overlopen.

De badkamer is verzorgd en compleet uitgevoerd met een dubbele wastafel, inloopdouche en designradiator. Daarnaast is er een modern toilet aanwezig. De bijkeuken biedt ruimte voor de wasmachine en de opstelling van de CV-ketel en zorgt voor extra praktische bergruimte.

Eerste verdieping
De hoofdslaapkamer bevindt zich op deze verdieping en is een fijne, lichte ruimte met uitzicht, een rolluik en airconditioning voor extra comfort. Tevens is er plaats voor een grote kledingkast deze maakt de kamer compleet en praktisch in gebruik.

Zolder
De zolderverdieping is bereikbaar via een vaste trap en biedt een veelzijdige ruimte. Of je nu een extra slaapkamer wilt creëren of een werkplek nodig hebt (zelfs voor twee bureaus), hier kan het allebei. Ook hier is airconditioning aanwezig, wat het comfortniveau hoog houdt.

Buitenruimte
De tuin is gelegen op het zuiden, waardoor je hier de hele dag van de zon kunt genieten. In combinatie met de overkapping ontstaat een fijne plek waar je al vroeg in het voorjaar en tot laat in het najaar buiten kunt zitten. De vrije ligging aan de achterzijde zorgt voor extra privacy en een prettig gevoel van ruimte. Daarnaast is er een aanpandige berging aanwezig voor fietsen en opslag.

Een karaktervolle woning met een speelse indeling, modern comfort en een uitzicht dat je elke dag blijft waarderen. Kom kijken en laat je verrassen.

Kaart

Kenmerken

Overdracht

Referentienummer
00747
Vraagprijs
€ 375.000,- k.k.
Status
Onder bod
Aanvaarding
In overleg
Aangeboden sinds
Dinsdag 14 april 2026
Laatste wijziging
Dinsdag 5 mei 2026

Bouw

Type object
Woonhuis, eengezinswoning, tussenwoning, dijkwoning
Soort bouw
Bestaande bouw
Bouwperiode
1924
Dakbedekking
Dakpannen
Type dak
Zadeldak
Isolatievormen
Dakisolatie
Dubbel glas
Muurisolatie

Oppervlaktes en inhoud

Perceeloppervlakte
125 m²
Woonoppervlakte
94 m²
Inhoud
338 m³
Oppervlakte overige inpandige ruimten
2 m²
Oppervlakte externe bergruimte
3 m²
Oppervlakte gebouwgebonden buitenruimte
6 m²

Indeling

Aantal bouwlagen
4
Aantal kamers
3 (waarvan 2 slaapkamers)
Aantal badkamers
1 (en 1 apart toilet)

Locatie

Ligging
Aan drukke weg
Dichtbij openbaar vervoer
Vrij uitzicht

Tuin

Type
Achtertuin
Hoofdtuin
Ja
Oriëntering
Zuiden
Staat
Goed onderhouden

Energieverbruik

Energielabel
C

CV ketel

CV ketel
Nefit HR-Combi
Warmtebron
Gas
Bouwjaar
2016
Eigendom
Eigendom

Uitrusting

Warm water
CV-ketel
Verwarmingssysteem
Airconditioning
Centrale verwarming
Ventilatie methode
Natuurlijke ventilatie
Badkamervoorzieningen
Dubbele wastafel
Inloopdouche
Heeft airco
Ja
Heeft kabel-tv
Ja
Tuin aanwezig
Ja
Beschikt over een internetverbinding
Ja
Heeft rolluiken
Ja
Heeft zonnepanelen
Ja

Kadastrale gegevens

Kadastrale aanduiding
Zuid-Beijerland C 1718
Perceeloppervlakte
125 m²
Omvang
Geheel perceel
Eigendomsituatie
Eigen grond

Media

Video

Virtuele tour

Plattegronden

ZonZone