Onder bod:Nobelstraat 72A, 3262 PM Oud-Beijerland - Foto
Onder bod
+50

Nobelstraat 72A 3262 PM Oud-Beijerland € 435.000,- k.k.

  • Appartement
  • 3 kamers
  • 2 slaapkamers
  • 1 badkamer
  • Bouwjaar 2002
  • 91 m² gebruiksoppervlakte
  • B Energielabel B

Beschrijving

Hier woon je licht, ruim en comfortabel in het hart van Oud-Beijerland. Nobelstraat 72-A is een goed ingedeelde bovenwoning uit 2002 met een woonoppervlakte van circa 91 m² en energielabel B. De woning beschikt over een royale woon- en eetkamer, twee slaapkamers, een luxe keuken, een complete badkamer én zowel een balkon als een ruim terras. De afwerking is modern en verzorgd: alle wanden en plafonds zijn voorzien van spachtelputz en de woning is uitgevoerd in rustige, eigentijdse kleurstellingen. In vrijwel de gehele woning ligt een nette laminaatvloer, wat zorgt voor een rustige en verzorgde basis. Alle woonruimtes bevinden zich op één verdieping, wat bijdraagt aan een prettig en overzichtelijk woongevoel. Hierdoor is de woning niet alleen aantrekkelijk voor mensen die comfortabel en gelijkvloers willen wonen, maar ook voor kopers die een instapklare woning zoeken waar direct van genoten kan worden.

De ligging is zonder meer een pluspunt. De Nobelstraat ligt midden in het centrum van Oud-Beijerland, op loopafstand van winkels, supermarkten, horeca en overige dagelijkse voorzieningen. Even snel boodschappen doen, een terrasje pakken of een rondje door het dorp wandelen – alles ligt letterlijk om de hoek. Ook het openbaar vervoer is dichtbij en met de auto ben je binnen enkele minuten op de uitvalswegen richting Rotterdam en Dordrecht. Tegelijk woon je hier verrassend rustig, met alle levendigheid van het dorp binnen handbereik. Een ideale plek voor wie graag centraal woont en het gemak van voorzieningen op loopafstand waardeert.

Bijzonderheden:
Bovenwoning gebouwd in 2002
Woonoppervlakte circa 91 m²
Energielabel B
Airconditioning in de woonkamer en hoofdslaapkamer
Twee slaapkamers
Luxe keuken met hoogwaardige inbouwapparatuur
Balkon én ruim terras
Laminaatvloer doorgelegd in vrijwel de gehele woning
Hoofdslaapkamer voorzien van vloerbedekking
Alle wanden en plafonds voorzien van spachtelputz
Moderne, rustige kleurstellingen
Alles gelegen op één woonlaag
Mogelijkheid voor het plaatsen van een traplift bij de entree
Centrale ligging in het centrum van Oud-Beijerland
Eigen fietsenberging van ca. 7 m²

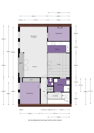
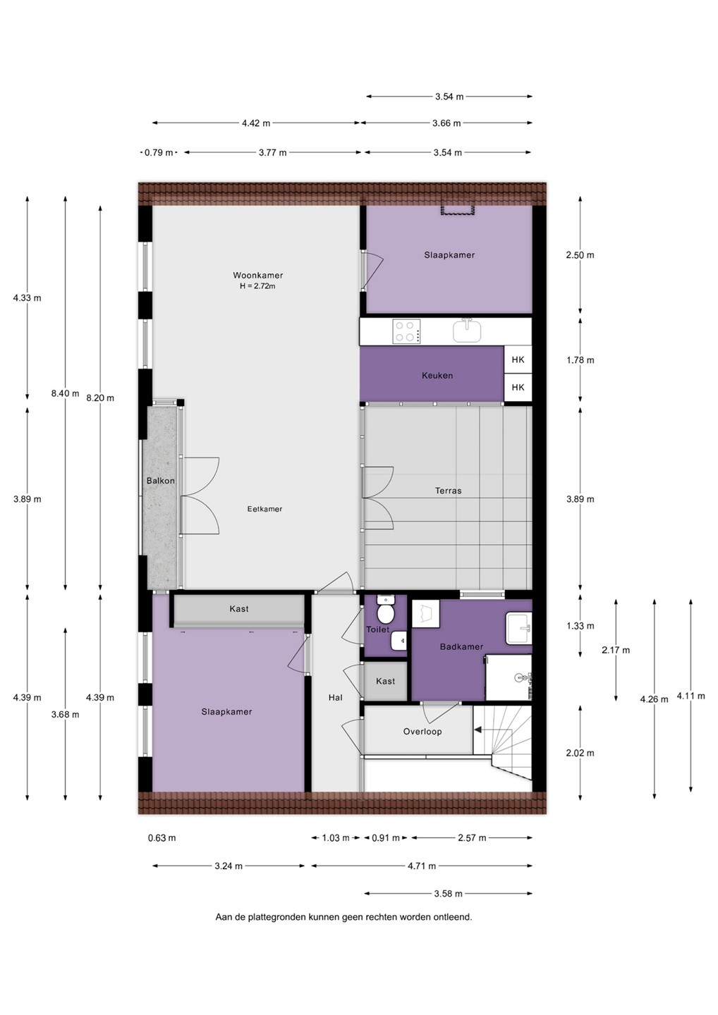
Indeling
Begane grond
Via de eigen entree kom je binnen in de hal met meterkast. Vanuit hier leidt de trapopgang naar de eerste verdieping. Door de opzet van de entree is het eventueel mogelijk om hier een traplift te plaatsen, wat de woning ook geschikt maakt voor bewoners die graag toekomstbestendig willen wonen.

Eerste verdieping
De entree van het appartement komt uit in de hal, die toegang geeft tot vrijwel alle vertrekken. Vanuit de hal zijn tevens het separate toilet en een praktische kast bereikbaar.

De woon- en eetkamer vormen samen een royale en lichte leefruimte. Dankzij de grote raampartijen voelt deze ruimte open en prettig aan, met voldoende plaats voor een comfortabele zithoek en een ruime eettafel. De laminaatvloer loopt mooi door in de ruimte en de strakke wandafwerking zorgt voor een moderne uitstraling. Daarnaast is de woonkamer voorzien van airconditioning, wat zorgt voor extra comfort tijdens warme dagen. Vanuit de eetkamer is er toegang tot het balkon, een fijne plek om even buiten te zitten.

De luxe keuken is centraal in de woning gelegen en uitgevoerd met hoogwaardige inbouwapparatuur, waaronder een wijnkoelkast, combi-oven, inductiekookplaat, Quooker, vaatwasser en een koel-vriescombinatie. Aangrenzend bevindt zich het ruime terras, een heerlijke buitenruimte waar binnen en buiten mooi in elkaar overlopen en waar je comfortabel kunt genieten van de buitenlucht.

De woning beschikt over twee slaapkamers. De hoofdslaapkamer (airco aanwezig) is ruim van opzet en biedt voldoende plaats voor een tweepersoonsbed en kastruimte. Deze kamer is afgewerkt met vloerbedekking en beschikt eveneens over airconditioning. De tweede slaapkamer is uitstekend geschikt als werkkamer, logeerkamer of hobbyruimte.

De badkamer is compleet uitgevoerd met een douche en wastafel en beschikt daarnaast over aansluitingen voor de wasapparatuur.

Berging
Bij de woning hoort een separate berging met een afmeting van circa 3,40 x 2,02 meter. Deze ruimte is ideaal voor het stallen van fietsen, het opbergen van seizoensspullen of extra huishoudelijke items. Een praktische aanvulling die zorgt voor extra gemak, zeker bij wonen in het centrum waar extra bergruimte altijd welkom is.

Nobelstraat 72-A is een comfortabele en goed afgewerkte bovenwoning met een fijne indeling, luxe keuken, prettige buitenruimtes en een uitstekende ligging in het centrum. Een woning waar je zó in kunt trekken en direct kunt genieten van alles wat Oud-Beijerland te bieden heeft.

Benieuwd of dit jouw nieuwe plek kan worden? Plan een bezichtiging en ervaar zelf het comfort en de ruimte van deze woning.

Kaart

Kenmerken

Overdracht

Referentienummer
00670
Vraagprijs
€ 435.000,- k.k.
Status
Onder bod
Aanvaarding
In overleg
Aangeboden sinds
Donderdag 5 maart 2026
Laatste wijziging
Woensdag 15 april 2026

Bouw

Type object
Appartement, bovenwoning
Woonlaag
2e woonlaag
Soort bouw
Bestaande bouw
Bouwperiode
2002
Dakbedekking
Bitumen
Dakpannen
Type dak
Kap met plat
Keurmerken
Energie prestatie advies
Isolatievormen
Dakisolatie
Dubbel glas
Muurisolatie
Vloerisolatie

Oppervlaktes en inhoud

Woonoppervlakte
91 m²
Inhoud
310 m³
Oppervlakte externe bergruimte
7 m²
Oppervlakte gebouwgebonden buitenruimte
17 m²

Indeling

Aantal bouwlagen
2
Aantal kamers
3 (waarvan 2 slaapkamers)
Aantal badkamers
1 (en 1 apart toilet)

Locatie

Ligging
Dichtbij openbaar vervoer
In centrum
Nabij school
Nabij snelweg

Energieverbruik

Energielabel
B

CV ketel

CV ketel
HR-Combi
Warmtebron
Gas
Bouwjaar
2001
Combiketel
Ja
Eigendom
Eigendom

Uitrusting

Warm water
CV-ketel
Verwarmingssysteem
Centrale verwarming
Warmterecuperatiesysteem
Ventilatie methode
Balansventilatie
Badkamervoorzieningen
Douche
Wastafelmeubel
Heeft airco
Ja
Telefoonaansluiting aanwezig
Ja
Beschikt over een internetverbinding
Ja
Heeft schuur/berging
Ja
Heeft een dakraam
Ja
Heeft een schuifpui
Ja

Vereniging van Eigenaren

Ingeschreven bij de KvK
Ja
Jaarlijkse vergadering
Ja
Periodieke bijdrage
Ja
Meer jaren onderhoudsplan
Ja
Onderhoudsverwachting
Ja
Opstal verzekering
Ja

Kadastrale gegevens

Kadastrale aanduiding
Oud-Beijerland D 6583
Omvang
Appartementsrecht of complex
Eigendomsituatie
Eigen grond
Indexnummer
2

Media

Video

Virtuele tour

Plattegronden

ZonZone