Onder bod:Beetsstraat 6, 3261 PL Oud-Beijerland - Foto
Onder bod
+67

Beetsstraat 6 3261 PL Oud-Beijerland € 650.000,- k.k.

  • Woonhuis
  • 5 kamers
  • 4 slaapkamers
  • 1 badkamers
  • Bouwjaar 1998
  • 315 m² perceeloppervlakte
  • 141 m² gebruiksoppervlakte
  • B Energielabel B

Beschrijving

Op zoek naar een fijn huis met veel leefruimte, licht en een grote tuin? Dan is deze ruime geschakelde twee-onder-een-kapwoning aan de Beetsstraat precies zo’n plek waar je als jong gezin of doorstromer graag binnenstapt. Het perceel van maar liefst 315 m², 5 kamers, 4 slaapkamers en een riante tuinkamer/overkapping maken dit een huis waar je direct voelt hoeveel mogelijkheden het biedt. De woning is gebouwd in 1998, degelijk uitgevoerd, voorzien van 14 zonnepanelen en heeft energielabel B. Binnen én buiten leef je hier ruim, licht en comfortabel — een fijne basis voor nu en in de toekomst.

Wonen aan de Beetsstraat & in Oud-Beijerland
De Beetsstraat ligt in een rustige, groene wijk aan de rand van het populaire Oud-Beijerland. Een dorp dat bekendstaat om zijn gezellige centrum, fijne winkels, horeca, scholen en sportclubs. Alles ligt op prettige fietsafstand. Ook liggen supermarkten, speeltuinen en voorzieningen vlakbij, wat de locatie ideaal maakt voor gezinnen. Daarnaast is de bereikbaarheid uitstekend: via de A29 ben je zo richting Rotterdam of Brabant. Rust, ruimte, levendigheid en gemak komen hier mooi samen.

Bijzonderheden
* Energielabel B
* Perceel 315 m²
* 5 kamers, 4 slaapkamers
* Aanpandige garage, vanuit de woning bereikbaar
* Airconditioning op zolder
* Mechanische ventilatie
* 14 zonnepanelen + omvormer
* Houten kozijnen met dubbel en HR+ glas
* Zonnescherm aan de achterzijde
* Rolluiken uitsluitend op de zolderkamer
* Dakkapel op zolder
* Vrijstaande schuur in de achtertuin
* Riante tuinkamer/overkapping met houtkachel
* HR-combiketel
* Bouwjaar 1998

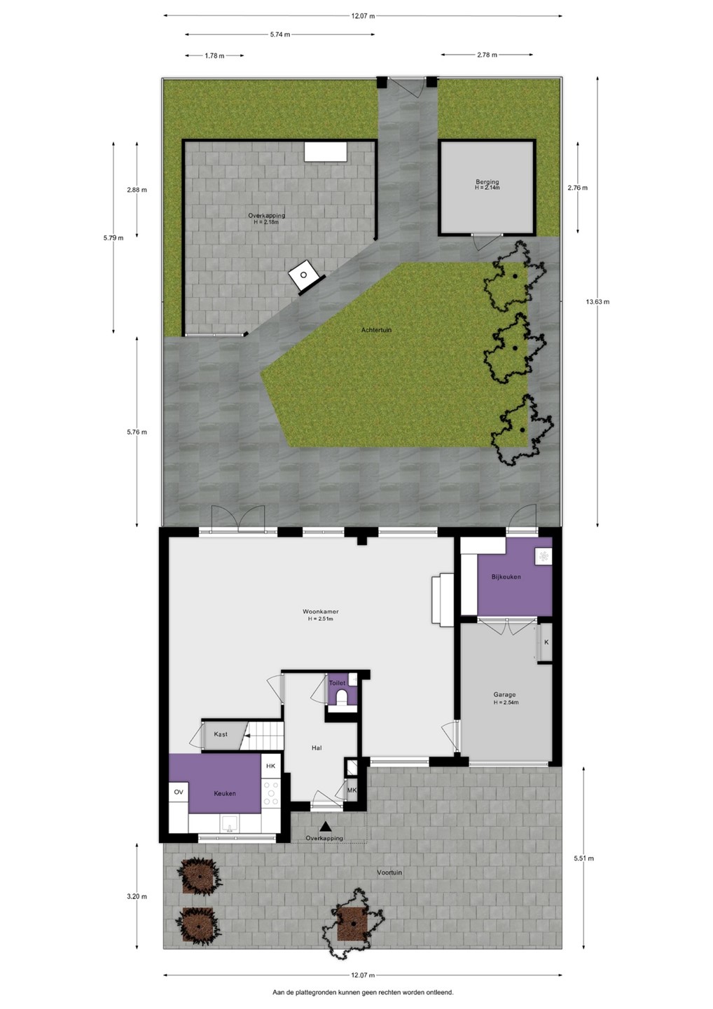
Indeling
Begane grond
De hal geeft toegang tot de meterkast, de toiletruimte en de trapopgang. Aan de voorzijde ligt de moderne keuken in een zwarte uitvoering, met veel licht dankzij het grote raam. De keuken is uitgerust met een kokendwaterkraan, gas kookplaat, afzuigkap, vaatwasser, koelkast, vriezer en een praktische voorraadkast. De woonkamer bevindt zich aan de achterzijde en is heerlijk licht door de grote ramen en openslaande deuren naar de tuin. Hier is ruimte voor een grote eettafel én een ruime zithoek. Via de woonkamer bereik je de aanpandige garage — ideaal voor fietsen, opslag of hobby’s.

Eerste verdieping
De eerste verdieping beschikt over drie fijne slaapkamers met veel lichtinval. De badkamer is wat op leeftijd, maar nog volledig functioneel, met een ligbad, aparte douche, dubbele wastafel en tweede toilet. Een praktische ruimte die je desgewenst eenvoudig naar je eigen smaak kunt moderniseren.

Zolderverdieping
De vaste trap brengt je naar de vergrote zolderverdieping, die is uitgebreid met een dakkapel waardoor er extra ruimte én licht is ontstaan. Op de voorzolder bevinden zich de aansluitingen voor de wasmachine en droger. De vierde slaapkamer is ruim, licht en voorzien van airconditioning — ideaal als tienerkamer, werkruimte of logeerkamer.

Buitenruimte
De achtertuin is breed, diep en biedt veel privacy. De riante tuinkamer met houtkachel is de absolute eyecatcher: een heerlijke plek om het hele jaar door te loungen, eten of borrelen. Daarnaast staat in de tuin een praktische schuur voor extra opslag. Het zonnescherm aan de achterzijde zorgt voor schaduw tijdens zonnige dagen. De voortuin zorgt voor een nette, verzorgde uitstraling aan de straatzijde.

Een heerlijke gezinswoning op een geliefde plek in Oud-Beijerland — plan snel een bezichtiging en ervaar de sfeer zelf!

Kaart

Kenmerken

Overdracht

Referentienummer
00697
Vraagprijs
€ 650.000,- k.k.
Status
Onder bod
Aanvaarding
In overleg
Aangeboden sinds
Vrijdag 21 november 2025
Laatste wijziging
Vrijdag 5 december 2025

Bouw

Type object
Woonhuis, eengezinswoning, geschakelde twee onder een kap woning
Soort bouw
Bestaande bouw
Bouwperiode
1998
Dakbedekking
Dakpannen
Type dak
Zadeldak
Isolatievormen
Dakisolatie
Dubbel glas
Muurisolatie
Vloerisolatie

Oppervlaktes en inhoud

Perceeloppervlakte
315 m²
Woonoppervlakte
141 m²
Inhoud
383 m³
Oppervlakte overige inpandige ruimten
11 m²
Oppervlakte externe bergruimte
8 m²
Oppervlakte gebouwgebonden buitenruimte
2 m²

Indeling

Aantal bouwlagen
3
Aantal kamers
5 (waarvan 4 slaapkamers)
Aantal badkamers
1 (en 1 apart toilet)

Locatie

Ligging
Aan rustige weg
Dichtbij openbaar vervoer
In woonwijk

Tuin

Type
Achtertuin
Hoofdtuin
Ja
Oriëntering
Zuid-west
Heeft een achterom
Ja
Staat
Normaal
Tuin 2 - Type
Voortuin
Tuin 2 - Oriëntering
Noord-oost
Tuin 2 - Staat
Normaal

Energieverbruik

Energielabel
B

CV ketel

CV ketel
Nefit Topline compact HRC30
Bouwjaar
2009
Combiketel
Ja
Eigendom
Eigendom

Uitrusting

Aantal parkeerplaatsen
3
Aantal overdekte parkeerplaatsen
1
Warm water
CV-ketel
Verwarmingssysteem
Centrale verwarming
Ventilatie methode
Mechanische ventilatie
Keukenvoorzieningen
Inbouwapparatuur
Badkamervoorzieningen
Douche
Ligbad
Toilet
Parkeergelegenheid
Aangebouwde stenen garage
Heeft airco
Ja
Heeft kabel-tv
Ja
Glasvezelaansluiting aanwezig
Ja
Tuin aanwezig
Ja
Heeft een garage
Ja
Telefoonaansluiting aanwezig
Ja
Beschikt over een internetverbinding
Ja
Heeft rolluiken
Ja
Heeft schuur/berging
Ja
Heeft zonwering
Ja
Heeft zonnepanelen
Ja
Heeft ventilatie
Ja

Kadastrale gegevens

Kadastrale aanduiding
Oud-Beijerland K 1208
Perceeloppervlakte
315 m²
Omvang
Geheel perceel
Eigendomsituatie
Eigen grond

Media

Video

Virtuele tour

Plattegronden

ZonZone