Onder bod:Scholekster 41, 3263 AK Oud-Beijerland - Foto
Onder bod
+55

Scholekster 41 3263 AK Oud-Beijerland € 392.500,- k.k.

  • Woonhuis
  • 5 kamers
  • 4 slaapkamers
  • 1 badkamer
  • Bouwjaar 1986
  • 154 m² perceeloppervlakte
  • 91 m² gebruiksoppervlakte
  • B Energielabel B

Beschrijving

Zoek je een woning waar je eigenlijk alleen nog je meubels hoeft neer te zetten, mét een zonnige tuin én het Spui om de hoek? Dan is dit er zo één. Deze goed onderhouden tussenwoning aan de Scholekster 41 in Oud-Beijerland biedt ca. 91 m² woonoppervlakte op een perceel van 154 m² en heeft alles in huis voor comfortabel wonen. Met drie slaapkamers en een volwaardige zolderverdieping is de indeling praktisch en compleet. De afwerking is modern en verzorgd – denk aan een strak gestuukte woonkamer, een luxe keuken en een nette badkamer – waardoor je hier zonder gedoe direct kunt intrekken.

Uw reactie ontvangen wij graag per mail!

De woning ligt in een rustige en prettige woonwijk in Oud-Beijerland, maar wat deze locatie écht bijzonder maakt is de nabijheid van het Spui. Binnen enkele minuten sta je aan het water, waar je heerlijk kunt wandelen, hardlopen of met de hond op pad kunt. Dit maakt het een ideale plek voor natuurliefhebbers en voor iedereen die graag buiten is. Tegelijkertijd woon je hier centraal met winkels, scholen en sportvoorzieningen op korte afstand. Ook de bereikbaarheid richting uitvalswegen en openbaar vervoer is goed, waardoor je snel onderweg bent richting Rotterdam en de rest van de regio. Een combinatie van rust, ruimte en bereikbaarheid die je niet vaak tegenkomt.

Bijzonderheden:
* Woonoppervlakte ca. 91 m²
* Perceel 154 m²
* Bouwjaar 1986
* Energielabel B
* Goed onderhouden en netjes afgewerkt
* Woonkamer met gestuukte wanden en plafonds
* Moderne keuken (ca. 2017) met natuurstenen blad
* Inbouwapparatuur: koelkast, vriezer, vaatwasser, oven, luxe fornuis en afzuigkap
* Moderne badkamer (ca. 2017) met dubbele wastafel, douchecabine, toilet en designradiator
* Modern toilet met fonteintje
* CV-ketel Intergas (2023)
* Kunststof en houten kozijnen met grotendeels HR++ glas
* Diepe, zonnige en keurig aangelegde achtertuin
* Vrijstaande berging
* Glasvezel aanwezig

Indeling

Begane grond
Via de hal met meterkast, modern toilet en trapopgang kom je in de keuken aan de voorzijde van de woning. De keuken is uitgevoerd in een hoekopstelling en heeft een luxe uitstraling dankzij het natuurstenen werkblad en de complete inbouwapparatuur. Vanuit de keuken loop je door naar de woonkamer aan de achterzijde. Deze ruimte is strak afgewerkt met gestuukte wanden en plafonds en heeft een fijne lichtinval. Vanuit de woonkamer heb je direct toegang tot de achtertuin.

Eerste verdieping
De overloop geeft toegang tot drie slaapkamers en de badkamer. De hoofdslaapkamer en de derde slaapkamer bevinden zich aan de achterzijde van de woning. Aan de voorzijde vind je de tweede slaapkamer en de badkamer. De badkamer is modern uitgevoerd en voorzien van een douchecabine, dubbel wastafelmeubel, toilet en designradiator. De gehele verdieping is afgewerkt met een nette laminaatvloer.

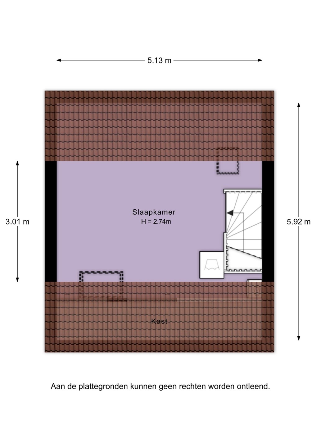
Zolder
De zolderverdieping is bereikbaar via een vaste trap en is een volwaardige extra ruimte. Hier vind je de opstelling van de CV-ketel (2023) en de wasmachineaansluiting. Dankzij het recent geplaatste dakraam is dit een lichte en prettige verdieping, die zich uitstekend leent als extra slaapkamer, werkruimte of hobbykamer.

Tuin
De achtertuin is een groot pluspunt van deze woning: diep, zonnig en keurig aangelegd. Door de diepte is er altijd wel een plekje in de zon of juist in de schaduw te vinden. De tuin biedt volop ruimte voor meerdere zitplekken, een eethoek of speelruimte voor kinderen. Achterin de tuin staat een praktische berging en via de achterom is de tuin ook goed bereikbaar.

Tot slot
Een complete en goed onderhouden woning met een fijne tuin en moderne afwerking op een rustige locatie. Plan snel een bezichtiging en ervaar zelf de ruimte en het comfort!

Kaart

Kenmerken

Overdracht

Referentienummer
00723
Vraagprijs
€ 392.500,- k.k.
Status
Onder bod
Aanvaarding
In overleg
Aangeboden sinds
Dinsdag 21 april 2026
Laatste wijziging
Maandag 11 mei 2026

Bouw

Type object
Woonhuis, eengezinswoning, tussenwoning
Soort bouw
Bestaande bouw
Bouwperiode
1986
Dakbedekking
Dakpannen
Type dak
Zadeldak
Isolatievormen
Dakisolatie
Dubbel glas
HR-glas
Muurisolatie

Oppervlaktes en inhoud

Perceeloppervlakte
154 m²
Woonoppervlakte
91 m²
Inhoud
334 m³
Oppervlakte externe bergruimte
5 m²

Indeling

Aantal bouwlagen
3
Aantal kamers
5 (waarvan 4 slaapkamers)
Aantal badkamers
1 (en 1 apart toilet)

Tuin

Type
Achtertuin
Hoofdtuin
Ja
Oriëntering
Zuiden
Heeft een achterom
Ja
Tuin 2 - Type
Voortuin

Energieverbruik

Energielabel
B

CV ketel

CV ketel
Hr-Combi
Warmtebron
Gas
Bouwjaar
2023
Combiketel
Ja
Eigendom
Eigendom

Uitrusting

Warm water
CV-ketel
Verwarmingssysteem
Centrale verwarming
Ventilatie methode
Mechanische ventilatie
Keukenvoorzieningen
Inbouwapparatuur
Badkamervoorzieningen
Douche
Toilet
Wastafelmeubel
Heeft kabel-tv
Ja
Glasvezelaansluiting aanwezig
Ja
Tuin aanwezig
Ja
Telefoonaansluiting aanwezig
Ja
Heeft schuur/berging
Ja
Heeft een dakraam
Ja
Heeft zonnecollectoren
Ja
Heeft ventilatie
Ja

Kadastrale gegevens

Kadastrale aanduiding
Oud-Beijerland H 2313
Perceeloppervlakte
154 m²
Omvang
Geheel perceel
Eigendomsituatie
Eigen grond

Media

Video

Virtuele tour

Plattegronden

ZonZone